Beschrijving

Wonen in een karakteristieke schipperswoning met tuin, midden in de stad en toch heerlijk rustig? Deze benedenwoning aan de Ooster Badstraat 10 combineert sfeer, ruimte en een toplocatie in Groningen.

Op zoek naar een sfeervolle woning met karakter én de stad binnen handbereik? Dan is deze benedenwoning absoluut het bekijken waard. Dit charmante huis biedt met een woonoppervlak van circa 99 m² verrassend veel ruimte. De woning is verdeeld over twee woonlagen en beschikt over twee ruime slaapkamers, een praktische kelder en een aangebouwde stenen berging in de tuin. De tuin zelf is een heerlijke plek om even tot rust te komen, midden in de stad maar toch met uw eigen buiten. Binnen ademt de woning sfeer en authenticiteit, met details die herinneren aan het karakter van vroeger. 

De ligging kan bijna niet beter. De Ooster Badstraat maakt deel uit van de gewilde Badstratenbuurt, aan de rand van het bruisende stadscentrum van Groningen. Op loopafstand vindt u de Westerhaven en de binnenstad met haar vele winkels, restaurants en gezellige cafés. Ook het Centraal Station ligt op slechts enkele minuten lopen, waardoor u optimaal profiteert van de uitstekende bereikbaarheid. De combinatie van stadse levendigheid en de rustige, karaktervolle straat maakt deze locatie uniek. Tevens is er parkeergelegenheid voor de deur. 

Kortom: een sfeervolle, ruime benedenwoning met tuin, op een toplocatie. Enthousiast geworden? Neem dan snel contact met ons op voor het plannen van een bezichtiging! 

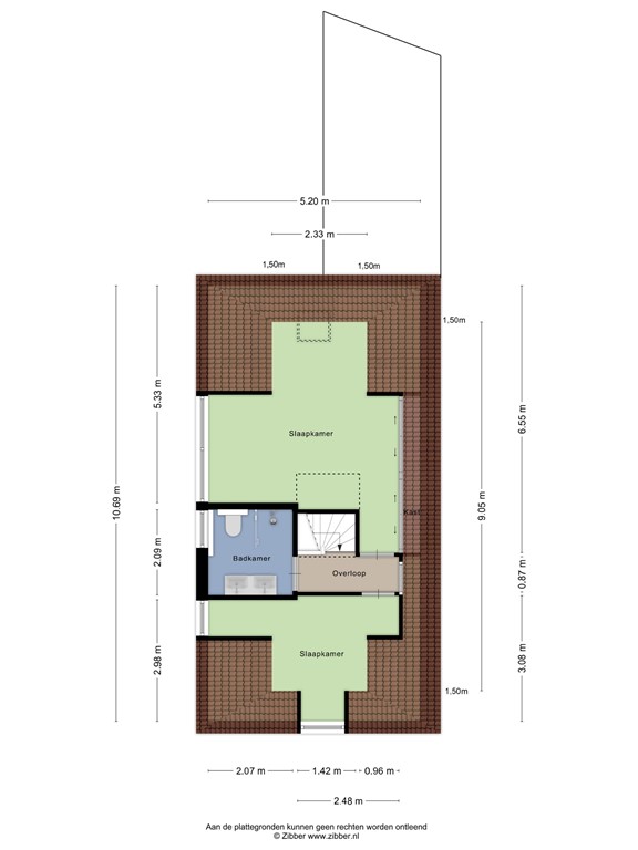
INDELING
Begane grond: entree/tochtportaal, hal met toegang tot de kelder en het toilet, woonkamer met zitgedeelte aan de voorzijden en eetgedeelte aan de achterkant, gesloten keuken met hoekopstelling voorzien van inbouwapparatuur en achterdeur naar de tuin, achtertuin gesitueerd op het noorden met berging en bereikbaar via een achterom. 

Eerste verdieping: overloop met toegang tot twee ruime slaapkamers waarvan één aan de voorzijde en één aan de achterzijde, moderne badkamer voorzien van inloopdouche, wastafelmeubel en tweede toilet. 

BIJZONDERHEDEN 
- Sfeervolle schipperswoning nabij het centrum;
- Ca. 99 m² woonoppervlakte en tuin;
- Mooie glas-in-lood ramen in dubbel glas;
- Aanvaarding in overleg. De woning is per direct beschikbaar;
- Niet-zelfbewoningsclausule van toepassing; Verkoper heeft de woning nooit zelf bewoond. Derhalve is er geen ingevulde Vragenlijst beschikbaar.

Kenmerken