Beschrijving

Ruime, energiezuinige tussenwoning met drie slaapkamers in Woldwijck

In de populaire en kindvriendelijke woonwijk Woldwijck staat deze ruime en energiezuinige tussenwoning met drie slaapkamers en een fraai aangelegde tuin. De woning is goed onderhouden, gemoderniseerd en uitstekend geïsoleerd - een ideale combinatie van comfort en duurzaamheid.

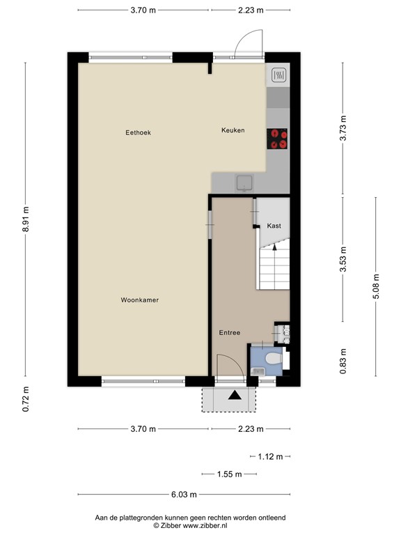
Via de nette hal betreed je de lichte woonkamer met open keuken, waar de open indeling zorgt voor een gezellige en ruimtelijke sfeer. Dankzij de grote raampartijen is er veel natuurlijke lichtinval. De moderne keuken (uit 2020) is van alle gemakken voorzien en biedt toegang tot de royale tuin met overkapping.

Op de eerste verdieping bevinden zich drie slaapkamers en een ruime badkamer. Eén van de slaapkamers beschikt over een diepe inbouwkast, en op de overloop is nog een praktische berging aanwezig.

De strak aangelegde achtertuin is een heerlijke plek om te ontspannen. De overkapping biedt een fijne zitplek, het geheel is netjes betegeld en het betreft een onderhoudsvrije tuin. Achter in de tuin bevindt zich tevens een praktisch schuurtje voor extra opslagruimte.
De woning ligt in een rustige, kindvriendelijke buurt met diverse speeltuinen, een Jumbo-supermarkt, basisscholen en kinderopvang op korte afstand.

Bijzonderheden:
- Moderne gezinswoning met ca. 108 m² woonoppervlak; 
- 3 slaapkamers; 
- Zonnige tuin op het zuiden, met berging en overkapping; 
- Energielabel A; 
- 12 zonnepanelen;
- CV-ketel Intergas uit 2021;
- Plat dak vernieuwd en geïsoleerd met 10 cm isolatie;
- Moderne keuken uit 2020;
- Voor- en achtergevel gezandstraald, opnieuw gevoegd en geïmpregneerd;
- Elektrische rolluiken bij de slaapkamers achterzijde. 

Enthousiast geworden? Neem dan snel contact met ons op voor het plannen van en bezichtiging!

Kenmerken