Onder bod:Burg. G. Van Barneveldstraat 12, 9744 CJ Groningen - Foto
Onder bod
+31

Burg. G. Van Barneveldstraat 12 9744 CJ Groningen € 249.000,- k.k.

  • Woonhuis
  • 4 kamers
  • 3 slaapkamers
  • 1 badkamer
  • Bouwjaar 1961
  • 153 m² perceeloppervlakte
  • 62 m² gebruiksoppervlakte
  • D Energielabel D

Beschrijving

Burg. G. Van Barneveldstraat 12 in Hoogkerk, Groningen – een heerlijke hoekwoning uit 1961 met GARAGE, en alle ruimte en mogelijkheden die je zoekt!

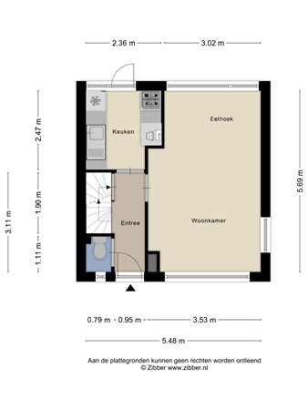
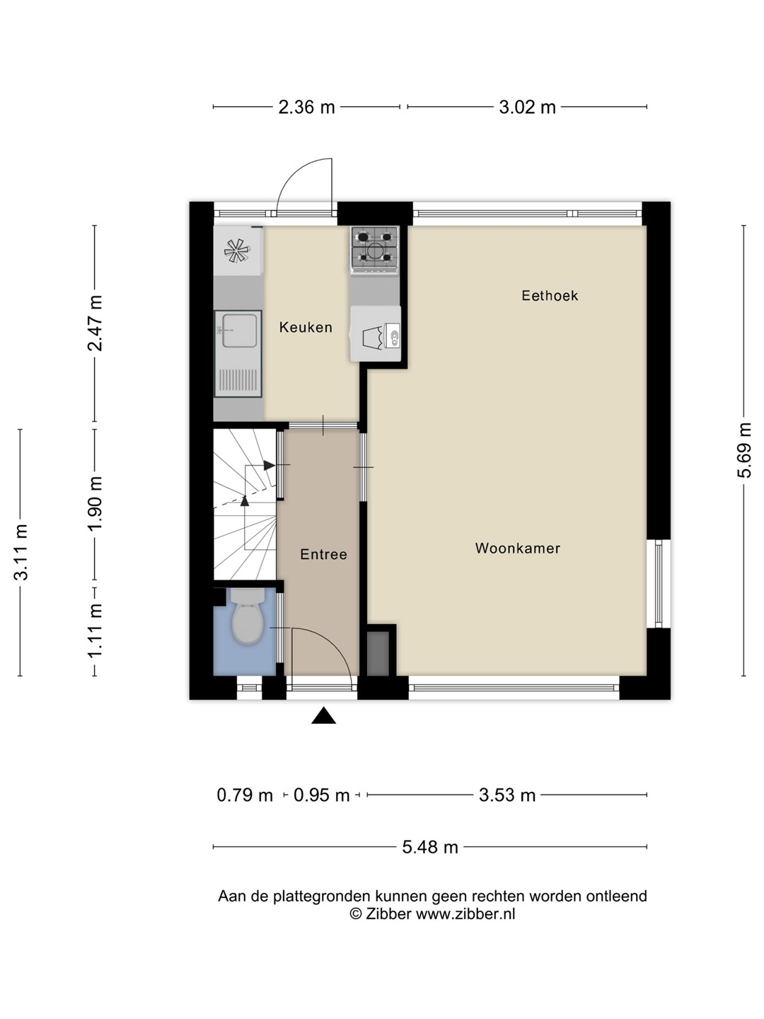
Deze knusse, lichte woning van 63 m² staat op een royaal perceel van 152 m² en biedt maar liefst 3 slaapkamers, ideaal voor starters of gezinnen die op zoek zijn naar een eigen plekje. De woonkamer is heerlijk licht dankzij het zijraam en biedt ruimte voor zowel een gezellige zithoek als een eethoek. De gesloten keuken is basic maar ruim, met plek voor de cv-ketel en wasmachine. Op de eerste verdieping vind je drie praktische slaapkamers met grote ramen en veel lichtinval, waarbij de grootste slaapkamer is voorzien van airconditioning. De badkamer is eenvoudig, maar functioneel met douche en wastafel. Buiten geniet je van een ruime, zonnige tuin met achterom en toegang tot de eigen garage (15 m²). Daarnaast is er ook nog eens een extra berging (6,5 m²), die zich achter de garage bevindt, bereikbaar via de achterom.

Deze woning heeft veel potentie om verder te verduurzamen, bijvoorbeeld met vloer-, dak- en spouwmuurisolatie, een warmtepomp of extra zonnepanelen – er liggen er nu al 7! Met diverse subsidiemogelijkheden, zoals het Nijbegun, kun je deze woning naar eigen smaak moderniseren en toekomstbestendig maken. Straks staat hier een super leuke, energiezuinige woning die helemaal bij jou past!

De locatie is perfect: Hoogkerk is een levendige wijk met veel voorzieningen en eigen winkelcentrum, vlakbij de stad Groningen. Je woont hier rustig, maar bent zo in het centrum dankzij goede busverbindingen en de nabijgelegen P+R Hoogkerk. In de straat is voldoende parkeergelegenheid, en met de A7 en N372 om de hoek ben je snel op weg. Kortom, een fijne plek om te wonen, met alle voorzieningen binnen handbereik!

BIJZONDERHEDEN
- Leuke hoekwoning met 3 slaapkamers, ideaal voor starters;
- Ruime tuin met achterom;
- Eigen garage én berging;
- 7 zonnepanelen en airconditioning aanwezig;
- Veel potentie voor verduurzaming i.c.m. subsidiemogelijkheden;
- Aanvaarding in overleg; De woning is op korte termijn beschikbaar.

Kaart

Kenmerken

Overdracht

Referentienummer
00283
Vraagprijs
€ 249.000,- k.k.
Status
Onder bod
Aanvaarding
In overleg
Aangeboden sinds
Donderdag 19 februari 2026
Laatste wijziging
Dinsdag 3 maart 2026

Bouw

Type object
Woonhuis, eengezinswoning, hoekwoning
Soort bouw
Bestaande bouw
Bouwperiode
1961
Dakbedekking
Bitumen
Type dak
Platdak
Isolatievormen
Dubbel glas

Oppervlaktes en inhoud

Perceeloppervlakte
153 m²
Woonoppervlakte
62,2 m²
Inhoud
220 m³
Oppervlakte externe bergruimte
21,6 m²

Indeling

Aantal bouwlagen
2
Aantal kamers
4 (waarvan 3 slaapkamers)
Aantal badkamers
1 (en 1 apart toilet)

Locatie

Ligging
In woonwijk

Tuin

Type
Achtertuin
Hoofdtuin
Ja
Oriëntering
Oosten
Heeft een achterom
Ja
Staat
Normaal
Tuin 2 - Type
Zijtuin
Tuin 3 - Type
Voortuin

Energieverbruik

Energielabel
D

CV ketel

CV ketel
Atag I28C
Warmtebron
Gas
Bouwjaar
2017
Combiketel
Ja
Eigendom
Eigendom

Uitrusting

Aantal parkeerplaatsen
1
Aantal overdekte parkeerplaatsen
1
Warm water
CV-ketel
Verwarmingssysteem
Centrale verwarming
Ventilatie methode
Natuurlijke ventilatie
Badkamervoorzieningen
Douche
Wastafel
Parkeergelegenheid
Vrijstaande stenen garage
Heeft airco
Ja
Tuin aanwezig
Ja
Heeft een garage
Ja
Heeft schuur/berging
Ja
Heeft zonwering
Ja
Heeft zonnepanelen
Ja

Kadastrale gegevens

Kadastrale aanduiding
Hoogkerk C 2015
Perceeloppervlakte
153 m²
Omvang
Geheel perceel
Eigendomsituatie
Eigen grond

Media

Virtuele tour

Plattegronden