Verkocht:S.O.J. Palmelaan 89, 9728 VG Groningen - Foto
Verkocht
+41

S.O.J. Palmelaan 89 9728 VG Groningen

  • Appartement
  • 4 kamers
  • 3 slaapkamers
  • 1 badkamer
  • Bouwjaar 1990
  • 109 m² gebruiksoppervlakte
  • A Energielabel A

Beschrijving

De S.O.J. Palmelaan ligt aan de zuidkant van Groningen, in de rustige wijk Hoornse Meer. De straat komt uit bij het gelijknamige Hoornsemeer en biedt ook in andere opzichten een groene, natuurlijke omgeving met onder andere het Stadspark en natuurgebied De Onlanden onder handbereik. Voor kinderen is het een heerlijke plek om op te groeien: er zijn voldoende speelplaatsen te vinden en de rustige, overzichtelijke straten zorgen ervoor dat ze al snel zelfstandig op pad kunnen. Op loop- en fietsafstand zijn bovendien meerdere scholen - zowel basis als voortgezet onderwijs - te vinden.

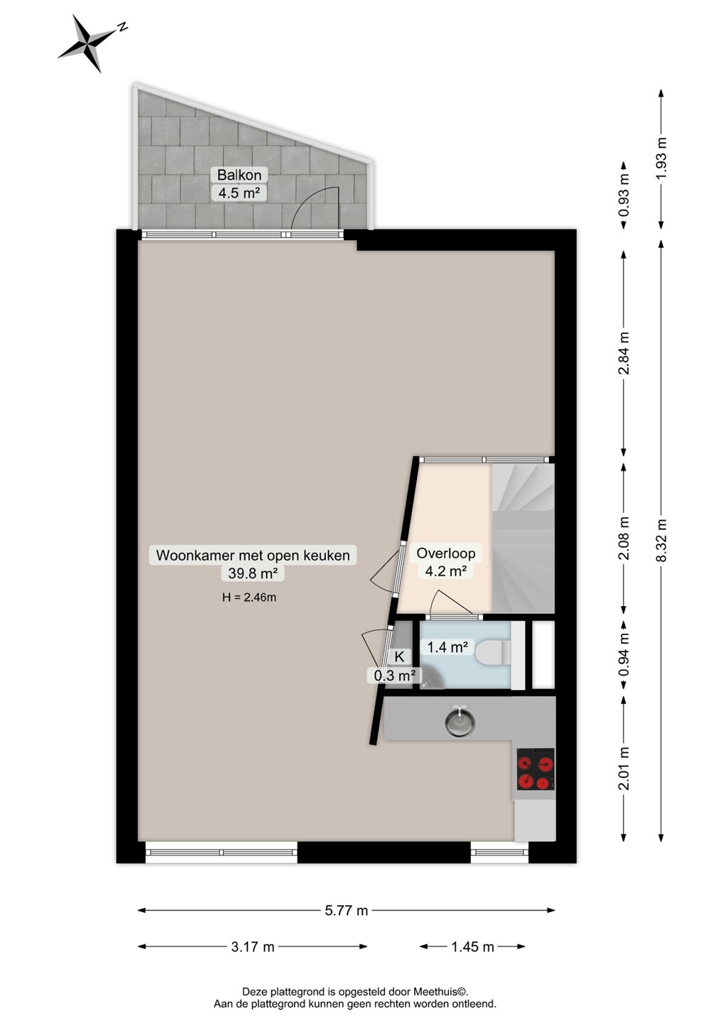
Met een woonoppervlak van 109 m², verdeeld over 3 woonlagen, biedt deze woning volop ruimte.
De bovenwoning leent zich dankzij drie slaapkamers uitstekend voor een gezin, maar ook voor starters en thuiswerkers is de woning ideaal. Als nieuwe bewoner stap je in een kant en klare woning met een speelse indeling en een sfeervolle, eigentijdse uitstraling. De woonkamer ligt op de eerste verdieping, wat zorgt voor een goede lichtinval en een vrij uitzicht. De open keuken (2023) met inbouwapparatuur is afgewerkt met mooie materialen en heeft trendy zwarte accenten. Via de woonkamer kom je op het balkon die gunstig op het westen ligt.

Op de bovenste verdieping vind je de drie slaapkamers en de ruime badkamer. Deze is voorzien van een inloopdouche, wastafelmeubel en handdoekradiator. De sanitaire ruimtes zijn netjes en in dezelfde stijl uitgevoerd wat zorgt voor eenheid in de woning. Tot slot kunnen we nog vermelden dat op de begane grond een inpandige berging is die je vanuit de hal bereikt.

Kenmerken:
* Moderne keuken (2023) voorzien van een inductiekookplaat, afzuigkap, vaatwasser, combi-oven en koelvriescombinatie;
* CV-ketel Remeha (2024);
* Energielabel A;
* De woning maakt deel uit van een actieve VvE (€ 105,00 per maand), zodat het onderhoud professioneel en goed geregeld is.

Al met al een zeer complete woning en dat op slechts vijftien minuten fietsen van de binnenstad. Meestal zal je niet eens zo ver hoeven gaan, want voor gezellige horeca en een goede supermarkt en winkels hoef je de wijk niet uit. Ook de winkels aan het Overwinningsplein zijn snel bereikbaar. Medewerkers van het Martiniziekenhuis kunnen waarschijnlijk waarderen dat de hoofdingang op slechts 600 meter afstand ligt. Voor iedereen die wat verder moet zijn de goede fietspaden en de nabijheid van uitvalswegen een uitkomst.

Ben jij enthousiast geworden en benieuwd hoe deze woning past in jouw woonwensen? Wacht dan niet te lang en maak snel een afspraak met 050Wonen voor een bezichtiging aan de S.O. J. Palmelaan 89 in Groningen!

Kaart

Kenmerken

Overdracht

Referentienummer
00261
Vraagprijs
€ 370.000,- k.k.
Status
Verkocht
Aanvaarding
In overleg
Aangeboden sinds
Woensdag 4 februari 2026
Laatste wijziging
Dinsdag 24 februari 2026

Bouw

Type object
Appartement, bovenwoning
Woonlaag
2e woonlaag
Soort bouw
Bestaande bouw
Bouwperiode
1990
Dakbedekking
Bitumen
Type dak
Platdak
Isolatievormen
Dakisolatie
Grotendeels dubbel glas
Muurisolatie

Oppervlaktes en inhoud

Woonoppervlakte
109,16 m²
Inhoud
352 m³
Oppervlakte gebouwgebonden buitenruimte
5,58 m²
Balkonoppervlakte
4,5 m²

Indeling

Aantal bouwlagen
3
Aantal kamers
4 (waarvan 3 slaapkamers)
Aantal badkamers
1 (en 1 apart toilet)

Locatie

Ligging
Dichtbij openbaar vervoer
In woonwijk
Nabij school
Nabij snelweg

Energieverbruik

Energielabel
A

CV ketel

CV ketel
Remeha
Warmtebron
Gas
Bouwjaar
2024
Combiketel
Ja
Eigendom
Eigendom

Uitrusting

Warm water
CV-ketel
Verwarmingssysteem
Centrale verwarming
Ventilatie methode
Mechanische ventilatie
Badkamervoorzieningen
Inloopdouche
Wastafel
Wastafelmeubel
Heeft een balkon
Ja
Glasvezelaansluiting aanwezig
Ja
Heeft schuur/berging
Ja
Heeft ventilatie
Ja

Vereniging van Eigenaren

Ingeschreven bij de KvK
Ja
Jaarlijkse vergadering
Ja
Periodieke bijdrage
Ja
Reservefonds
Ja
Meer jaren onderhoudsplan
Ja
Opstal verzekering
Ja

Kadastrale gegevens

Kadastrale aanduiding
Helpman O 1542
Omvang
Appartementsrecht of complex
Eigendomsituatie
Eigen grond
Indexnummer
35