Verkocht:Grietmansweg 21, 9363 KS Marum - Foto
Verkocht
+59

Grietmansweg 21 9363 KS Marum

  • Woonhuis
  • 6 kamers
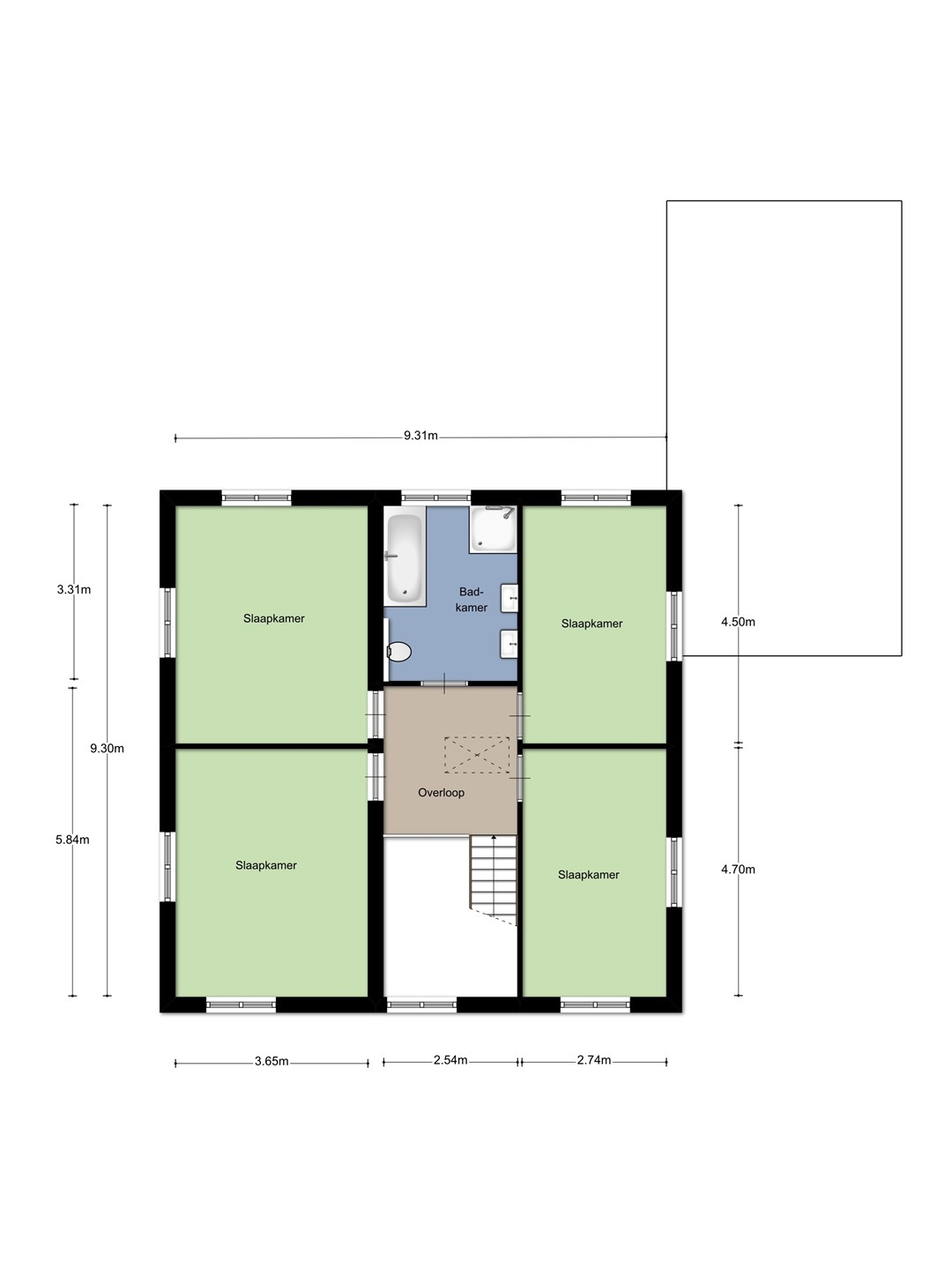
  • 5 slaapkamers
  • 1 badkamers
  • Bouwjaar 2013
  • 518 m² perceeloppervlakte
  • 166 m² gebruiksoppervlakte
  • A Energielabel A

Beschrijving

Modern, comfortabel en energievriendelijk, maar met een klassieke twist: dit vrijstaande herenhuis in Marum laat zien hoe mooi die combinatie kan zijn! Dit herenhuis is in 2013 gebouwd volgens de kenmerken van een statige notariswoning. De symmetrische vormen die daarbij horen worden versterkt door de doordacht aangelegde tuin. De royale entree - met mooie glas-in-loodramen, sierlijk gedecoreerde trap en klassieke voordeur - maakt het plaatje vervolgens bij binnenkomst compleet. Daarnaast is de woning ook nog eens afgewerkt met kwalitatief hoogwaardige materialen.

Het woonhuis straalt kracht, rust en authenticiteit uit. Met ruim 165m2 gebruiksoppervlakte wonen en nog eens circa 82m2 overig inpandige ruimte is de woning erg ruim. Zo heeft de woning op de begane grond een royale woonkamer, bijkeuken, werkkamer en een diepe garage met elektrische garagedeur. Op de verdieping vind je vier slaapkamers en een ruime badkamer. Daarnaast heeft de woning een riante, middels vlizotrap te bereiken zolder van bijna 60m2, waar je met wat aanpassingen met nog een aantal extra kamers zou kunnen realiseren.

De woning ligt in een groene omgeving aan de oostkant van het dorp Marum. Achter de woning en de onderhoudsvriendelijke tuin met meerdere terrassen ligt een mooie waterpartij en diverse wandelpaden. Heerlijk voor een dagelijks ommetje.

Het dorp Marum ligt op een klein half uurtje rijden van het centrum van Groningen en heeft een goed voorzieningenniveau. Ook in het nabijgelegen Drachten, Tolbert, Leek en Roden is een hoog voorzieningenniveau. De mooie natuur van dit stukje Groningen en het nabijgelegen Drenthe en Friesland is voor veel bewoners én bezoekers een rijke bron van ontspanning, rust en recreatiemogelijkheden!

Bijzonderheden:
* In 2013 gebouwd royaal en statig herenhuis;
* Vier ruime slaapkamers;
* 16 zonnepanelen;
* Afgewerkt met hoogwaardige materialen;
* Aanvaarding in overleg;

Kaart

Kenmerken

Overdracht

Referentienummer
00230
Vraagprijs
€ 615.000,- k.k.
Status
Verkocht
Aanvaarding
In overleg
Aangeboden sinds
Maandag 18 augustus 2025
Laatste wijziging
Vrijdag 5 september 2025

Bouw

Type object
Woonhuis, herenhuis, vrijstaande woning
Soort bouw
Bestaande bouw
Bouwperiode
2013
Dakbedekking
Dakpannen
Type dak
Schilddak

Oppervlaktes en inhoud

Perceeloppervlakte
518 m²
Woonoppervlakte
165,7 m²
Inhoud
892 m³
Oppervlakte overige inpandige ruimten
82,3 m²

Indeling

Aantal bouwlagen
3
Aantal kamers
6 (waarvan 5 slaapkamers)
Aantal badkamers
1 (en 1 apart toilet)

Tuin

Type
Achtertuin

Energieverbruik

Heeft een energiecertificaat
Ja
Energielabel
A

CV ketel

Warmtebron
Gas
Bouwjaar
2013
Combiketel
Ja
Eigendom
Eigendom

Uitrusting

Aantal parkeerplaatsen
4
Warm water
CV-ketel
Verwarmingssysteem
Centrale verwarming
Badkamervoorzieningen
Douche
Dubbele wastafel
Ligbad
Toilet
Parkeergelegenheid
Aangebouwde stenen garage
Tuin aanwezig
Ja
Heeft een garage
Ja

Kadastrale gegevens

Kadastrale aanduiding
Marum F 6275
Perceeloppervlakte
518 m²
Omvang
Geheel perceel
Eigendomsituatie
Eigen grond