Verkocht:Marga Klompélaan 1, 9363 LB Marum - Foto
Verkocht
+53

Marga Klompélaan 1 9363 LB Marum

  • Woonhuis
  • 5 kamers
  • 4 slaapkamers
  • 1 badkamers
  • Bouwjaar 1995
  • 362 m² perceeloppervlakte
  • 162 m² gebruiksoppervlakte
  • A Energielabel A

Beschrijving

Ben je op zoek naar een prachtig uitgebouwde en sfeervol en hoogwaardig afgewerkte woning met een slaapkamer beneden? Dan is deze fraaie 2-onder-1-kapwoning wellicht jouw nieuwe woning! Kom je kijken?

De woning kenmerkt zich door het luxe en hoogwaardige afwerkingsniveau. Doordat de woning aan de achterzijde is uitgebouwd, is een ruime woonkamer met open keuken en aparte tv-hoek ontstaan. De luxe keuken is voorzien van diverse Miele apparatuur, zoals een koffie-automaat, stoomoven en vaatwasser. Daarnaast vind je in de tv-hoek een luxe tv-wand met gashaard. De garage is omgebouwd tot werkruimte en zeer geschikt voor bijvoorbeeld een schoonheids- of kapsalon aan huis. Uiteraard kan deze ruimte ook als slaapkamer gebruikt worden.

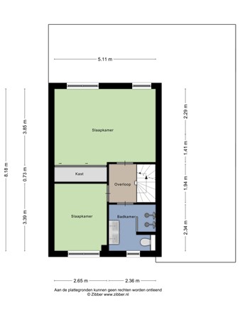
Op de eerste verdieping vind je twee slaapkamers en een luxe badkamer met onder andere een dubbele douche, sunshower en dubbel wastafelmeubel. De grootste slaapkamer is voorzien van airco. Deze is (indien gewenst) eenvoudig op te delen in twee slaapkamers.

Op de tweede verdieping vind je een ruime zolderkamer. Hier vind je tevens de cv-ketel en ruimte voor het witgoed. Ook deze ruimte is voorzien van een airco.

Achter in de tuin is een prachtig tuinhuis gerealiseerd met overdekt terras. Deze is van veel gemakken voorzien zoals elektra, sfeerverlichting en een tv-aansluiting. Je kunt hier heerlijk lang van de zomeravonden genieten.

De woning is gelegen op een hoekperceel van 362 m². Door deze hoekligging biedt de woning veel privacy. Voorzieningen zoals scholen, sportvelden en winkels zijn op loopafstand bereikbaar.

Door de goede isolatie en onder andere de aanwezigheid van 22 zonnepanelen heeft de woning energielabel A. De woning is hierdoor ook nog eens toekomstbestendig.

Bijzonderheden:

- Luxe afgewerkt;
- Ruime uitbouw over de gehele breedte van de woning;
- Slaapkamer beneden, zeer geschikt als werkruimte voor bijvoorbeeld een schoonheids- of kapsalon aan huis;
- Energielabel A: duurzaam en energiezuinig;
- Gelegen in een rustige en kindvriendelijke buurt;
- Op loopafstand van voorzieningen zoals scholen, sportvelden en het centrum van Marum;
- Uitvalswegen in de buurt: binnen 3 minuten op weg richting Groningen of Drachten;

Zie jij jezelf hier al wonen? Neem dan snel contact op voor een bezichtiging!

Kaart

Kenmerken

Overdracht

Referentienummer
00143
Vraagprijs
€ 439.000,- k.k.
Status
Verkocht
Aanvaarding
In overleg
Aangeboden sinds
Dinsdag 6 mei 2025
Laatste wijziging
Zaterdag 20 september 2025

Bouw

Type object
Woonhuis, eengezinswoning, twee onder een kap woning
Soort bouw
Bestaande bouw
Bouwperiode
1995
Dakbedekking
Bitumen
Dakpannen
Type dak
Zadeldak
Isolatievormen
HR-glas
Volledig geïsoleerd

Oppervlaktes en inhoud

Perceeloppervlakte
362 m²
Woonoppervlakte
162 m²
Inhoud
574 m³
Oppervlakte externe bergruimte
6,5 m²
Oppervlakte gebouwgebonden buitenruimte
3,4 m²

Indeling

Aantal bouwlagen
3
Aantal kamers
5 (waarvan 4 slaapkamers)
Aantal badkamers
1 (en 1 apart toilet)

Tuin

Type
Achtertuin
Hoofdtuin
Ja
Oriëntering
Zuid-west
Staat
Prachtig aangelegd

Energieverbruik

Energielabel
A

CV ketel

CV ketel
Remeha
Warmtebron
Gas
Bouwjaar
2024
Combiketel
Ja
Eigendom
Eigendom

Uitrusting

Aantal parkeerplaatsen
2
Warm water
CV-ketel
Verwarmingssysteem
Centrale verwarming
Heeft kabel-tv
Ja
Tuin aanwezig
Ja
Heeft een schuifpui
Ja
Heeft zonnepanelen
Ja

Kadastrale gegevens

Kadastrale aanduiding
Marum C 9155
Perceeloppervlakte
362 m²
Omvang
Geheel perceel
Eigendomsituatie
Eigen grond