Onder bod:Ubbenasingel 10, 9909 AP Spijk - Foto
Onder bod
+37

Ubbenasingel 10 9909 AP Spijk € 225.000,- k.k.

  • Woonhuis
  • 4 kamers
  • 3 slaapkamers
  • 1 badkamers
  • Bouwjaar 1949
  • 230 m² perceeloppervlakte
  • 82 m² gebruiksoppervlakte
  • C Energielabel C

Beschrijving

In dit gezellige woonhuis in Spijk proef je direct de charme van het leven in een eeuwenoud wierdendorp. Spijk beschikt over een fraaie historische dorpskern en een groene, ruim opgezette woonomgeving. De combinatie van rust, ruimte en historie maakt het hier bijzonder aangenaam wonen. Dat gevoel wordt extra benadrukt bij deze twee-onder-een-kapwoning aan de rand van het dorp, waar je volop ruimte rondom de woning hebt en op loopafstand woont van speelvelden en de prachtige landelijke omgeving.

De goed verzorgde woning dateert uit 1949 en heeft een prettige, karaktervolle uitstraling. In de loop der jaren is de woning gemoderniseerd en verduurzaamd, met onder andere kunststof kozijnen met HR++ glas, comfortabele vloerverwarming op de begane grond en negen zonnepanelen. Hierdoor woon je niet alleen sfeervol, maar ook comfortabel en energiezuinig.

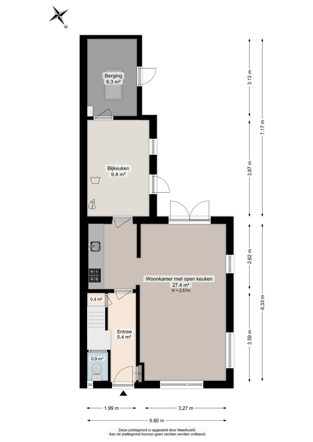
De indeling is praktisch en prettig: een lichte doorzonwoonkamer met openslaande deuren naar de tuin, een open keuken met bar. Op de eerste verdieping bevinden zich drie slaapkamers en een badkamer voorzien van een douche en wasmeubel.

Dankzij de ruime bijkeuken, de diepe en koele kelder, de inbouwkasten op de verdieping en de bergzolder is er volop bergruimte aanwezig. Ook buiten zet dit praktische karakter zich voort. De lange oprit biedt parkeergelegenheid op eigen terrein en de grote, vrijstaande garage is ideaal voor fietsen, gereedschap, hobby’s of de auto.

Spijk – door de locals ook wel ‘Spiek’ genoemd – is een rustig dorp met een rijk verenigingsleven en een verrassend compleet voorzieningenniveau. Zo vind je er onder andere een supermarkt en cafetaria op loopafstand, het nieuwe kindcentrum ’t Maar, een bibliotheek en een huisarts met apotheek. Ook is er een actieve voetbalvereniging. Voor kinderen is dit een fijne plek om op te groeien en dankzij goede verbindingen zijn diverse middelbare scholen in de regio eenvoudig bereikbaar. Grotere plaatsen zoals Appingedam, Delfzijl en Groningen liggen bovendien op korte afstand. Voor natuur- en cultuurliefhebbers is het noorden van Groningen een heerlijke woonomgeving, met weidse vergezichten, een rijke geschiedenis en de nabijheid van de Waddenzee.

Ben jij enthousiast geworden en benieuwd hoe deze woning past in jouw woonwensen? Wacht dan niet te lang en maak snel een afspraak met 050Wonen voor een bezichtiging aan de Ubbenasingel 10 in Spijk!

Kaart

Kenmerken

Overdracht

Referentienummer
00259
Vraagprijs
€ 225.000,- k.k.
Status
Onder bod
Aanvaarding
In overleg
Aangeboden sinds
Vrijdag 9 januari 2026
Laatste wijziging
Maandag 26 januari 2026

Bouw

Type object
Woonhuis, eengezinswoning, twee onder een kap woning
Soort bouw
Bestaande bouw
Bouwperiode
1949
Dakbedekking
Bitumen
Dakpannen
Type dak
Zadeldak
Isolatievormen
Dakisolatie
Dubbel glas
HR-glas
Muurisolatie
Spouwmuren
Vloerisolatie

Oppervlaktes en inhoud

Perceeloppervlakte
230 m²
Woonoppervlakte
81,66 m²
Inhoud
322 m³
Oppervlakte overige inpandige ruimten
12,09 m²
Oppervlakte externe bergruimte
25,22 m²

Indeling

Aantal bouwlagen
3 (en 1 kelder)
Aantal kamers
4 (waarvan 3 slaapkamers)
Aantal badkamers
1 (en 1 apart toilet)

Locatie

Ligging
Aan rustige weg
In woonwijk

Tuin

Type
Achtertuin
Hoofdtuin
Ja
Oriëntering
Zuid-west
Staat
Goed onderhouden
Tuin 2 - Type
Voortuin
Tuin 2 - Oriëntering
Noord-oost
Tuin 2 - Staat
Goed onderhouden

Energieverbruik

Energielabel
C

CV ketel

CV ketel
Intergas hre
Warmtebron
Gas
Bouwjaar
2021
Combiketel
Ja
Eigendom
Eigendom

Uitrusting

Aantal parkeerplaatsen
1
Warm water
CV-ketel
Verwarmingssysteem
Centrale verwarming
Vloerverwarming (gedeeltelijk)
Ventilatie methode
Natuurlijke ventilatie
Keukenvoorzieningen
Inbouwapparatuur
Badkamervoorzieningen
Douche
Wastafelmeubel
Parkeergelegenheid
Vrijstaande houten garage
Tuin aanwezig
Ja
Heeft een garage
Ja
Heeft schuur/berging
Ja
Heeft zonnepanelen
Ja

Kadastrale gegevens

Kadastrale aanduiding
Bierum H 1925
Perceeloppervlakte
230 m²
Omvang
Geheel perceel
Eigendomsituatie
Eigen grond