Koop:Gaykingastraat 37-1, 9791 CG Ten Boer - Foto
+5

Gaykingastraat 37-1 9791 CG Ten Boer € 225.000,- k.k.

  • Appartement
  • 2 kamers
  • 1 slaapkamer(s)
  • 1 badkamer
  • Bouwjaar 2024
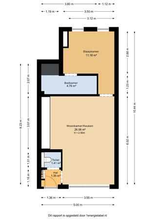
  • 48 m² gebruiksoppervlakte
  • Gestoffeerd
  • A++ Energielabel A++

Beschrijving

Startersappartementen Ten Boer, wonen als nieuw, op 10 minuten van Groningen!
Ben jij klaar voor je eerste eigen plek?

Ontdek deze recent gerenoveerde appartementen in Ten Boer, modern, duurzaam en direct instapklaar! Slechts 10 autominuten van Groningen, met de rust van het dorp en de levendigheid van de stad binnen handbereik.

De appartementen zijn in 2025 volledig gerenoveerd en deels herbouwd en voelen als nieuw.
Alles is voor je geregeld: vloer, stoffering, keuken, badkamer, schilderwerk, compleet sleutelklaar!

Globale indeling: Hal/entree met modern toilet. Woonkamer met openslaande deuren naar terras of balkon. Open keuken met moderne keukenopstelling v.v. enige inbouwapparatuur.
Slaapkamer en doucheruimte met douche, wastafelmeubel en aansluiting voor wasmachine.

Waarom kiezen voor dit project:
• Compact en comfortabel – woonoppervlak van ca. 39 tot 70 m²
• Moderne afwerking met luxe keuken en strak sanitair
• Tegen meerprijs is de keuken uit te breiden
• Verwarming én koeling via energiezuinige airconditioning
• Zonnepanelen aanwezig, lage energielasten, hoog wooncomfort
• Inclusief berging, met gezamenlijke berging voor de kleinere type appartementen
• Parkeerplaats mogelijk (tegen meerprijs en beschikbaarheid)
• Bushalte op loopafstand, binnen no time in Groningen
• Energielabel A++ (verwacht)
• Interessante projectfinanciering beschikbaar
• De VvE is in oprichting, waardoor de genoemde bijdrage en het breukdeel nog niet definitief zijn vastgesteld

Ideaal voor starters en young professionals die comfortabel en duurzaam willen wonen, zonder klussen of zorgen.

Kom vrijdag 21 november tussen 14.00 en 16.00 de appartementen bekijken. Tijdens dit open huis zijn er makelaars van Makelaardij Nienoord en 050Wonen aanwezig om je rond te leiden. Daarnaast is er een adviseur van VastgoedKeukens en een hypotheekadviseur van Veni Groningen aanwezig. Kom je ook?

Kaart

Kenmerken

Overdracht

Referentienummer
00255
Vraagprijs
€ 225.000,- k.k.
Servicekosten
€ 100,-
Inrichting
Ja
Inrichting
Gestoffeerd
Aanvaarding
In overleg
Aangeboden sinds
Woensdag 12 november 2025
Laatste wijziging
Dinsdag 13 januari 2026

Bouw

Type object
Appartement, benedenwoning
Woonlaag
1e woonlaag
Soort bouw
Bestaande bouw
Bouwperiode
2024
Dakbedekking
Bitumen
Type dak
Platdak
Isolatievormen
HR-glas
Volledig geïsoleerd

Oppervlaktes en inhoud

Woonoppervlakte
47,88 m²
Inhoud
154 m³

Indeling

Aantal bouwlagen
1
Aantal kamers
2 (waarvan 1 slaapkamer)
Aantal badkamers
1 (en 1 apart toilet)

Tuin

Type
Open ruimte
Oriëntering
Noord west

Energieverbruik

Energielabel
A++

Uitrusting

Warm water
Elektrische boiler
Verwarmingssysteem
Airconditioning
Ventilatie methode
Mechanische ventilatie
Badkamervoorzieningen
Inloopdouche
Wasmachineaansluiting
Wastafelmeubel
Heeft airco
Ja
Heeft kabel-tv
Ja
Glasvezelaansluiting aanwezig
Ja
Tuin aanwezig
Ja
Heeft zonnepanelen
Ja
Heeft ventilatie
Ja

Vereniging van Eigenaren

Ingeschreven bij de KvK
Ja
Jaarlijkse vergadering
Ja
Periodieke bijdrage
Ja
Reservefonds
Ja
Meer jaren onderhoudsplan
Ja
Opstal verzekering
Ja

Kadastrale gegevens

Kadastrale aanduiding
Ten Boer A 5166
Omvang
Appartementsrecht of complex

Media

Foto's

Plattegronden

Brochure(s) en overige bijlagen

Brochure Ten Boer klein.pdf Download